Project of a modern house with an attic

242 m² total area / 2605 ft² 1 floor 3 bedrooms 3 bathrooms
Project of a modern house with an attic
Click to view

Description

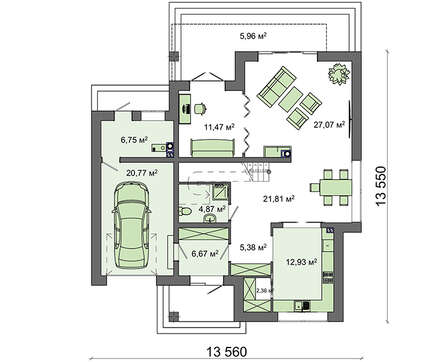
Project of a modern house with an attic Number of floors: 2 Total area: 242.17 m2 Living Area: 69.22 m2 House height: 8.90 m Ceiling Height: 2.80 m Roof Angle: 40 ° Roof area: 270.00 m2 Number of bedrooms: 3 Number of bathrooms: 3 Garage: Garage for one car Minimum plot size (length): 20.00 m Minimum plot size (width): 20.00 m Built-up area: 155.88 m2 Materials: Walls: aerated concrete, ceramic blocks Overlap: monolithic overlap Roofing: metal tile, ceramic tile, bitumen Foundation: monolithic tape

Interested in this plan?

Contact us to get full blueprints, construction estimate, or adapt this plan to your plot and needs.

Request more information

Visualization gallery