Amazing cottage with natural decor

279 m² total area / 3003 ft² 1 floor 3 bedrooms 3 bathrooms
Amazing cottage with natural decor
Click to view

Description

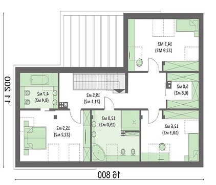
Amazing cottage with natural decor Number of floors: 2 Total area: 279.35 m2 Living Area: 195.69 m2 House height: 7.40 m Ceiling Height: 2.80 m Roof Angle: 35 ° Roof area: 239.00 m2 Cubic capacity: 742.00 m3 Number of bedrooms: 3 Number of bathrooms: 3 Garage: Garage for one car Minimum plot size (length): 24.80 m Minimum plot size (width): 19.20 m Built-up area: 145.64 m2 Materials: Walls: aerated concrete, ceramic blocks Overlap: monolithic overlap Roofing: ceramic tile, metal tile, cement-sand tile Foundation: monolithic tape

Interested in this plan?

Contact us to get full blueprints, construction estimate, or adapt this plan to your plot and needs.

Request more information

Visualization gallery