Light two-story residential building

251 m² total area / 2702 ft² 2 floors 5 bedrooms 3 bathrooms
Light two-story residential building
Click to view

Description

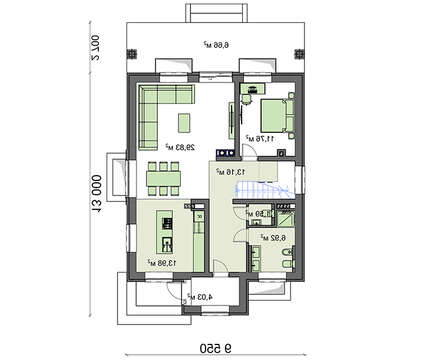
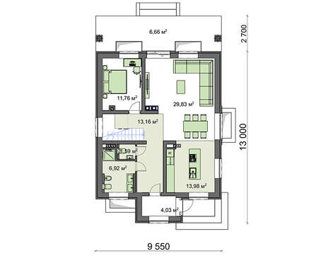
Light two-story residential building<br data-rich-text-line-break="true" />Number of floors: 3<br data-rich-text-line-break="true" />Total area: 250.70 m2<br data-rich-text-line-break="true" />Living Area: 101.55 m2<br data-rich-text-line-break="true" />House height: 9.60 m<br data-rich-text-line-break="true" />Ceiling Height: 2.80 m<br data-rich-text-line-break="true" />Roof Angle: 42 °<br data-rich-text-line-break="true" />Roof area: 191.00 m2<br data-rich-text-line-break="true" />Cubic capacity: 1060.00 m3<br data-rich-text-line-break="true" />Number of bedrooms: 5<br data-rich-text-line-break="true" />Number of bathrooms: 3<br data-rich-text-line-break="true" />Minimum plot size (length): 24.00 m<br data-rich-text-line-break="true" />Minimum plot size (width): 19.00 m<br data-rich-text-line-break="true" />Built-up area: 155.8 m2<br data-rich-text-line-break="true" />Ground floor area: 86.49 m2<br data-rich-text-line-break="true" />Materials:<br data-rich-text-line-break="true" />Walls: aerated concrete blocks<br data-rich-text-line-break="true" />Overlap: monolithic overlap<br data-rich-text-line-break="true" />Roofing: metal tile, ceramic tile, bitumen<br data-rich-text-line-break="true" />Foundation: monolithic tape

Interested in this plan?

Contact us to get full blueprints, construction estimate, or adapt this plan to your plot and needs.

Request more information

Visualization gallery