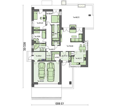
Modern house with three bedrooms and three bathrooms

169 m² total area / 1819 ft² 1 floor 3 bedrooms 3 bathrooms
Modern house with three bedrooms and three bathrooms
Click to view

Description

Modern house with three bedrooms and three bathrooms<br data-rich-text-line-break="true" />Number of floors: 1<br data-rich-text-line-break="true" />Total area: 169.00 m2<br data-rich-text-line-break="true" />Living Area: 63.49 m2<br data-rich-text-line-break="true" />House height: 4.25 m<br data-rich-text-line-break="true" />Ceiling Height: 2.80 m<br data-rich-text-line-break="true" />Roof Angle: 2 °<br data-rich-text-line-break="true" />Roof area: 173.00 m2<br data-rich-text-line-break="true" />Cubic capacity: 502.20 m3<br data-rich-text-line-break="true" />Number of bedrooms: 3<br data-rich-text-line-break="true" />Number of bathrooms: 3<br data-rich-text-line-break="true" />Garage: Two-car garage<br data-rich-text-line-break="true" />Minimum plot size (length): 28.20 m<br data-rich-text-line-break="true" />Minimum plot size (width): 21.70 m<br data-rich-text-line-break="true" />Built-up area: 266.6 m2<br data-rich-text-line-break="true" />Materials:<br data-rich-text-line-break="true" />Walls: aerated concrete blocks<br data-rich-text-line-break="true" />Overlap: monolithic overlap<br data-rich-text-line-break="true" />Roofing: PVC membrane<br data-rich-text-line-break="true" />Foundation: monolithic tape

Interested in this plan?

Contact us to get full blueprints, construction estimate, or adapt this plan to your plot and needs.

Request more information

Visualization gallery