The project of an energy-saving classic house with an attic

155 m² total area / 1668 ft² 1 floor 5 bedrooms 3 bathrooms
The project of an energy-saving classic house with an attic
Click to view

Description

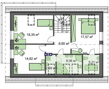
The project of an energy-saving classic house with an attic Number of floors: 2 Total area: 155.10 m2 Living Area: 94.31 m2 House height: 7.53 m Ceiling Height: 2.80 m Roof Angle: 35 ° Roof area: 145.00 m2 Cubature: 354.00 m3 Number of bedrooms: 5 Number of bathrooms: 3 Minimum plot size (length): 16.34 m Minimum plot size (width): 19.64 m Built-up area: 94 m2 Materials: Walls: aerated concrete blocks Overlap: monolithic overlap Roofing: metal tile, ceramic tile, bitumen Foundation: monolithic tape

Interested in this plan?

Contact us to get full blueprints, construction estimate, or adapt this plan to your plot and needs.

Request more information

Visualization gallery