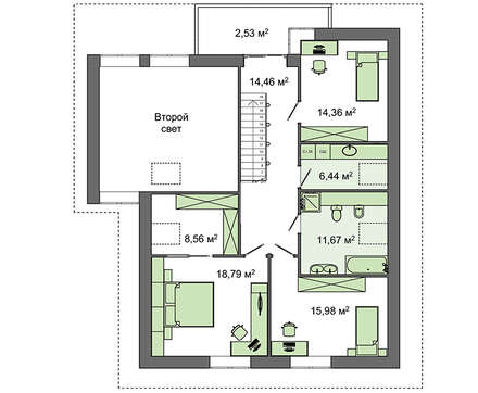
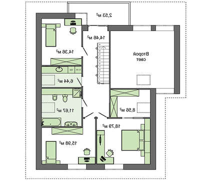
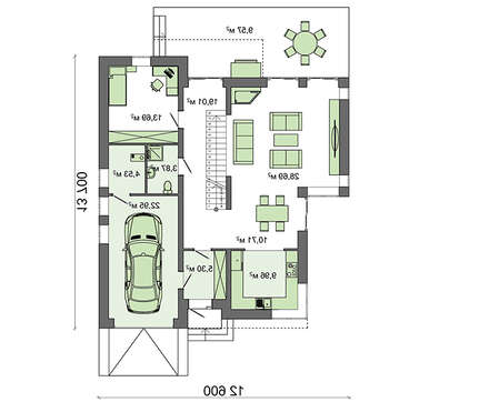
The project of a two-story cottage with a second light

221 m² total area / 2379 ft² 2 floors 4 bedrooms 2 bathrooms
The project of a two-story cottage with a second light
Click to view

Description

The project of a two-story cottage with a second light Number of floors: 2 Total area: 221.07 m2 Living Area: 91.51 m2 House height: 8.80 m Ceiling Height: 2.80 m Roof Angle: 35 ° Roof area: 247.00 m2 Cubic capacity: 950.00 m3 Number of bedrooms: 4 Number of bathrooms: 2 Garage: Garage for one car Minimum plot size (length): 20.50 m Minimum plot size (width): 21.50 m Built-up area: 145.5 m2 Materials: Walls: aerated concrete, ceramic blocks Overlap: monolithic overlap Roof: shingles Foundation: monolithic tape

Interested in this plan?

Contact us to get full blueprints, construction estimate, or adapt this plan to your plot and needs.

Request more information

Visualization gallery