Original T-shaped house in a modern style

216 m² total area / 2325 ft² 2 floors 4 bedrooms 3 bathrooms
Original T-shaped house in a modern style
Click to view

Description

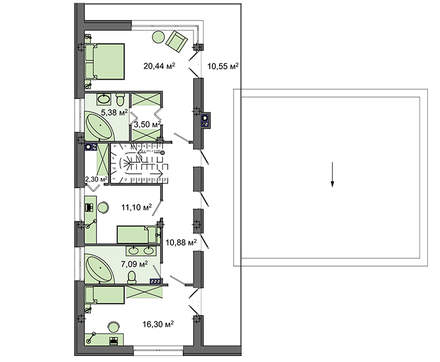
Original T-shaped house in a modern style Number of floors: 2 Total area: 216.14 m2 Living Area: 105.83 m2 House height: 7.20 m Ceiling Height: 2.80 m Roof Angle: 2.5 ° / 2 ° ° Roof area: 202.50 m2 Cubature: 513.00 m3 Number of bedrooms: 4 Number of bathrooms: 3 Garage: Garage for one car Minimum plot size (length): 22.00 m Minimum plot size (width): 24.00 m Built-up area: 195 m2 Materials: Walls: aerated concrete blocks Overlap: monolithic overlap Roofing: PVC membrane Foundation: monolithic tape band

Interested in this plan?

Contact us to get full blueprints, construction estimate, or adapt this plan to your plot and needs.

Request more information

Visualization gallery