The project of a small one-story cottage

73 m² total area / 786 ft² 1 floor 2 bedrooms 1 bathroom
The project of a small one-story cottage
Click to view

Description

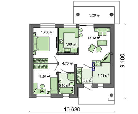
The project of a small one-story cottage Number of floors: 1 Total area: 72.57 m2 Living Area: 43.05 m2 House height: 5.93 m Ceiling Height: 2.80 m Roof Angle: 25 ° Roof area: 143.50 m2 Cubic capacity: 185.00 m3 Number of bedrooms: 2 Number of bathrooms: 1 Minimum plot size (length): 16.88 m Minimum plot size (width): 16.38 m Built-up area: 117.5 m2 Materials: Walls: aerated concrete blocks Ceiling: on wooden beams Roofing: metal tile, ceramic tile, bitumen Foundation: monolithic tape

Interested in this plan?

Contact us to get full blueprints, construction estimate, or adapt this plan to your plot and needs.

Request more information

Visualization gallery