Project of the original two-story house with bay windows

212 m² total area / 2282 ft² 2 floors 5 bedrooms 2 bathrooms
Project of the original two-story house with bay windows
Click to view

Description

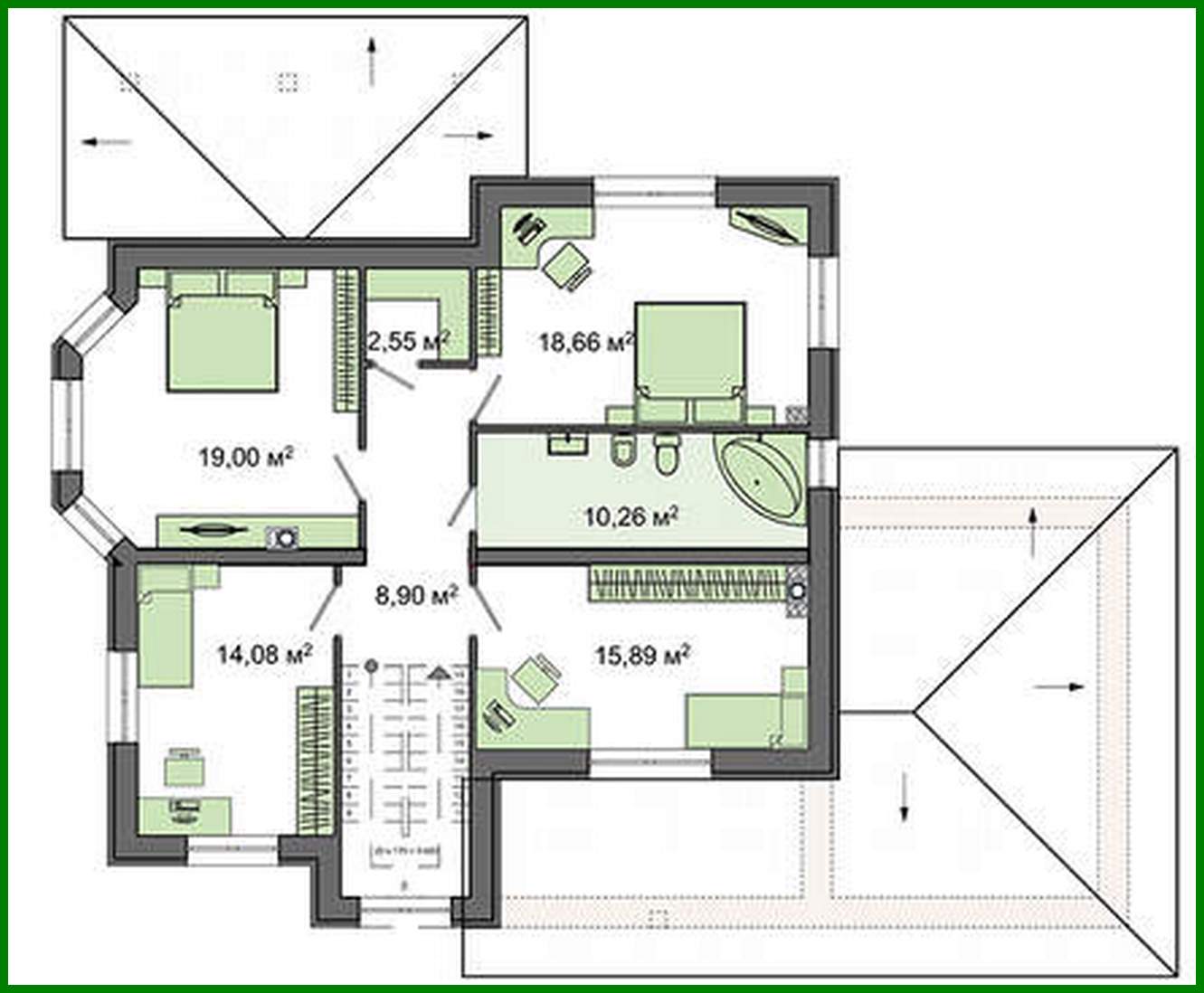
334. Project of the original two-story house with bay windows Number of floors: 2 Total area: 212.15 m2 Living Area: 110.09 m2 House height: 9.60 m Ceiling Height: 2.80 m Roof Angle: 25/28 ° Roof Area: 285.50 m2 Number of bedrooms: 5 Number of bathrooms: 2 Garage: Garage for one car Minimum plot size (length): 26.00 m Minimum plot size (width): 21.00 m Built-up area: 251.96 m2 Materials: Walls: aerated concrete blocks Overlap: monolithic overlap Roofing: metal tile, ceramic tile, bitumen Foundation: monolithic tape

Interested in this plan?

Contact us to get full blueprints, construction estimate, or adapt this plan to your plot and needs.

Request more information

Visualization gallery