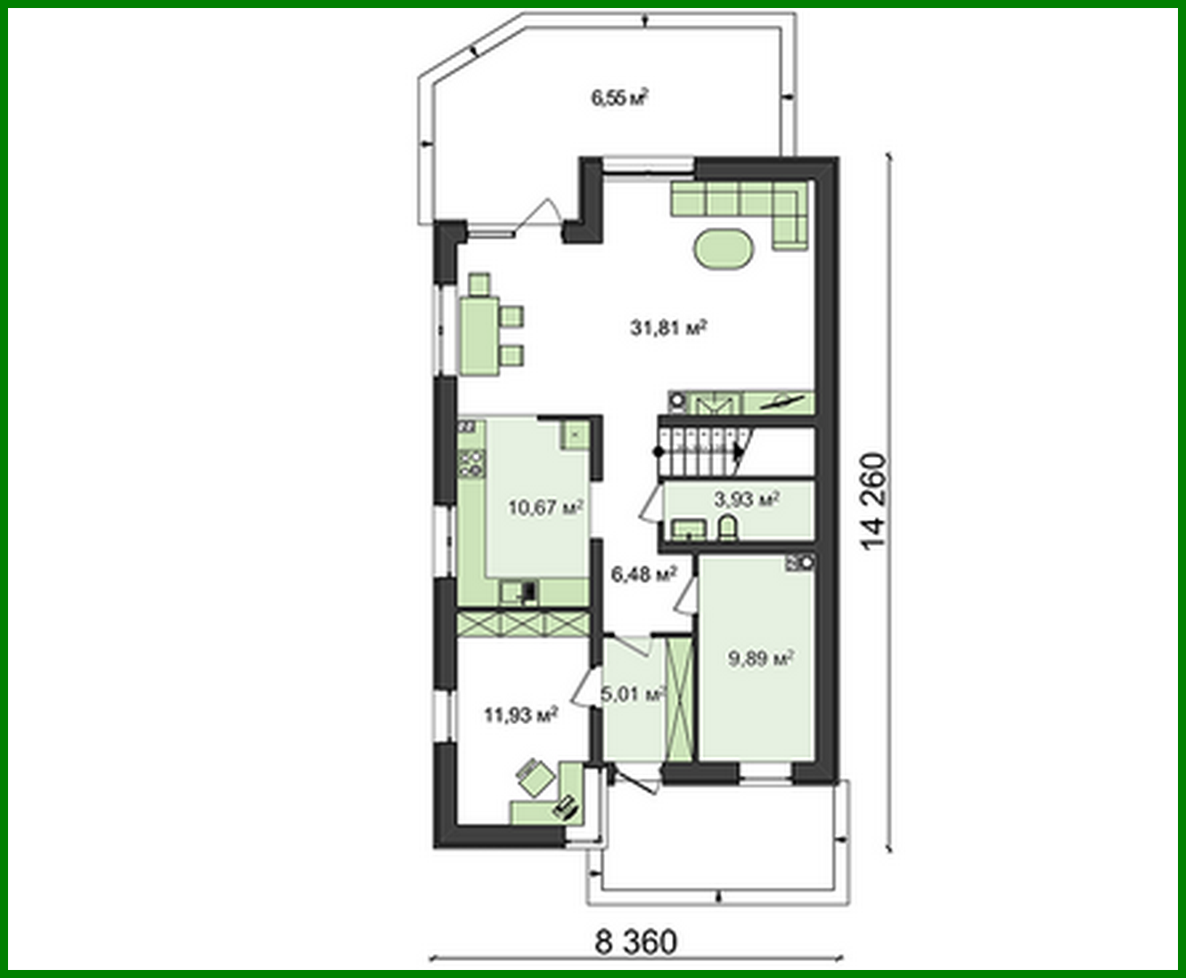
Project of a house with an attic for a narrow plot

159 m² total area / 1711 ft² 1 floor 4 bedrooms 3 bathrooms
Project of a house with an attic for a narrow plot
Click to view

Description

Project of a house with an attic for a narrow plot Number of floors: 2 Total area: 158.85 m2 Living Area: 91.29 m2 House height: 7.62 m Ceiling Height: 2.80 m Roof Angle: 35 ° Roof Area: 152.88 m2 Cubature: 305.00 m3 Number of bedrooms: 4 Number of bathrooms: 3 Minimum plot size (length): 21.00 m Minimum plot size (width): 15.00 m Built-up area: 147.64 m2 Materials: Walls: aerated concrete blocks Overlap: monolithic overlap Roofing: metal tile, ceramic tile, bitumen Foundation: monolithic tape

Interested in this plan?

Contact us to get full blueprints, construction estimate, or adapt this plan to your plot and needs.

Request more information

Visualization gallery