A project of a beautiful country house with an area of ​​200 m²

190 m² total area / 2045 ft² 1 floor 4 bedrooms 2 bathrooms
A project of a beautiful country house with an area of ​​200 m²
Click to view

Description

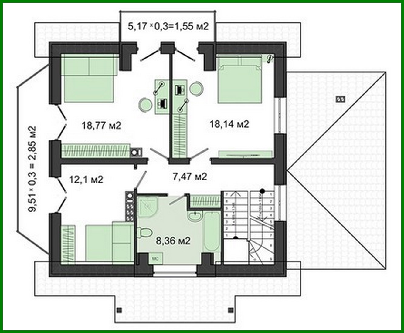
A project of a beautiful country house with an area of ​​200 m² Number of floors: 2 Total area: 189.57 m2 Living Area: 88.05 m2 House height: 8.66 m Ceiling Height: 2.80 m Roof Angle: 40 °, 20 ° ° Roof Area: 186.50 m2 Cubic capacity: 815.00 m3 Number of bedrooms: 4 Number of bathrooms: 2 Garage: Garage for one car Minimum plot size (length): 21.90 m Minimum plot size (width): 19.70 m Built-up area: 120 m2 Materials: Walls: aerated concrete, ceramic blocks Overlap: monolithic overlap Roofing: ceramic tile, metal tile, cement-sand tile Foundation: monolithic tape band

Interested in this plan?

Contact us to get full blueprints, construction estimate, or adapt this plan to your plot and needs.

Request more information

Visualization gallery