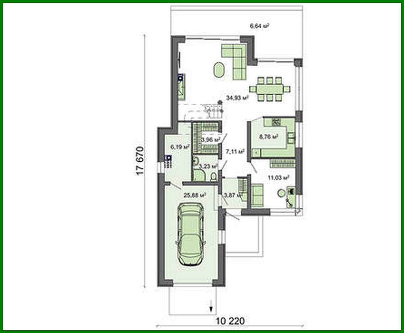
Modern house with three bedroom on the second floor

194 m² total area / 2088 ft² 2 floors 4 bedrooms 3 bathrooms
Modern house with three bedroom on the second floor
Click to view

Description

410. Modern house with three bedroom on the second floor Number of floors: 2 Total area: 193.82 m2 Living Area: 87.15 m2 House height: 9.15 m Ceiling Height: 2.80 m Roof Angle: 25 ° Roof area: 179.00 m2 Number of bedrooms: 4 Number of bathrooms: 3 Garage: Garage for one car Minimum plot size (length): 25.00 m Minimum plot size (width): 18.10 m Built-up area: 180.97 m2 Materials: Walls: aerated concrete blocks Overlap: monolithic overlap Roofing: metal tile, ceramic tile, bitumen Foundation: monolithic tape

Interested in this plan?

Contact us to get full blueprints, construction estimate, or adapt this plan to your plot and needs.

Request more information

Visualization gallery