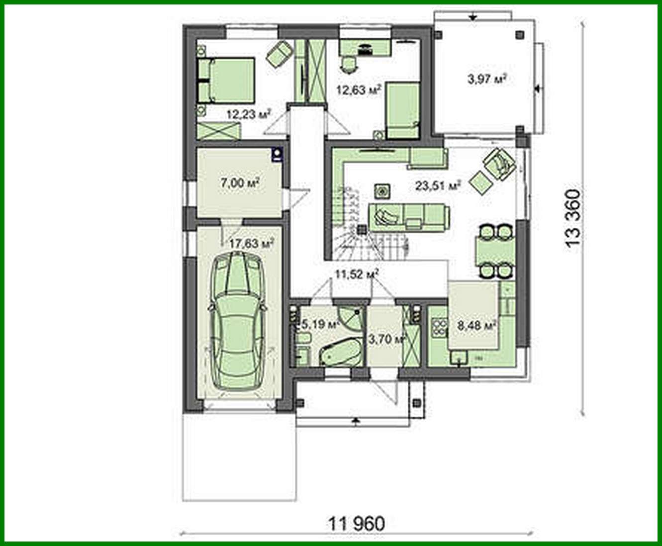
Modern house with an attic and a garage

157 m² total area / 1690 ft² 1 floor 4 bedrooms 2 bathrooms
Modern house with an attic and a garage
Click to view

Description

Modern house with an attic and a garage Number of floors: 2 Total area: 157.09 m2 Living Area: 79.18 m2 House height: 7.92 m Ceiling Height: 2.80 m Roof Angle: 30 ° Roof area: 221.22 m2 Number of bedrooms: 4 Number of bathrooms: 2 Garage: Garage for one car Minimum plot size (length): 21.50 m Minimum plot size (width): 20.00 m Built-up area: 172.8 m2 Materials: Walls: aerated concrete blocks Overlap: monolithic overlap Roofing: metal tile, ceramic tile, bitumen Foundation: monolithic tape

Interested in this plan?

Contact us to get full blueprints, construction estimate, or adapt this plan to your plot and needs.

Request more information

Visualization gallery