Residential building with attic and garage

174 m² total area / 1873 ft² 1 floor 4 bedrooms 2 bathrooms
Residential building with attic and garage
Click to view

Description

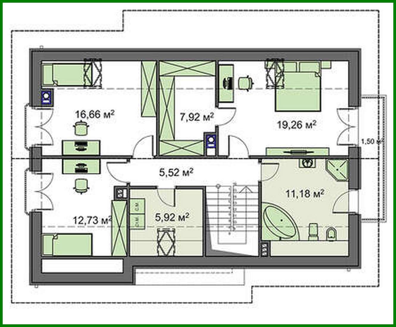
Residential building with attic and garage Number of floors: 2 Total area: 173.76 m2 Living Area: 85.33 m2 House height: 8.62 m Ceiling Height: 2.80 m Roof Angle: 40 ° Roof Area: 208.73 m2 Number of bedrooms: 4 Number of bathrooms: 2 Garage: Garage for one car Minimum plot size (length): 17.20 m Minimum plot size (width): 21.10 m Built-up area: 156.3 m2 Materials: Walls: aerated concrete blocks Overlap: monolithic overlap Roofing: metal tile, ceramic tile, bitumen Foundation: monolithic tape

Interested in this plan?

Contact us to get full blueprints, construction estimate, or adapt this plan to your plot and needs.

Request more information

Visualization gallery