Chic two-story narrow house

226 m² total area / 2433 ft² 2 floors 3 bedrooms 3 bathrooms
Chic two-story narrow house
Click to view

Description

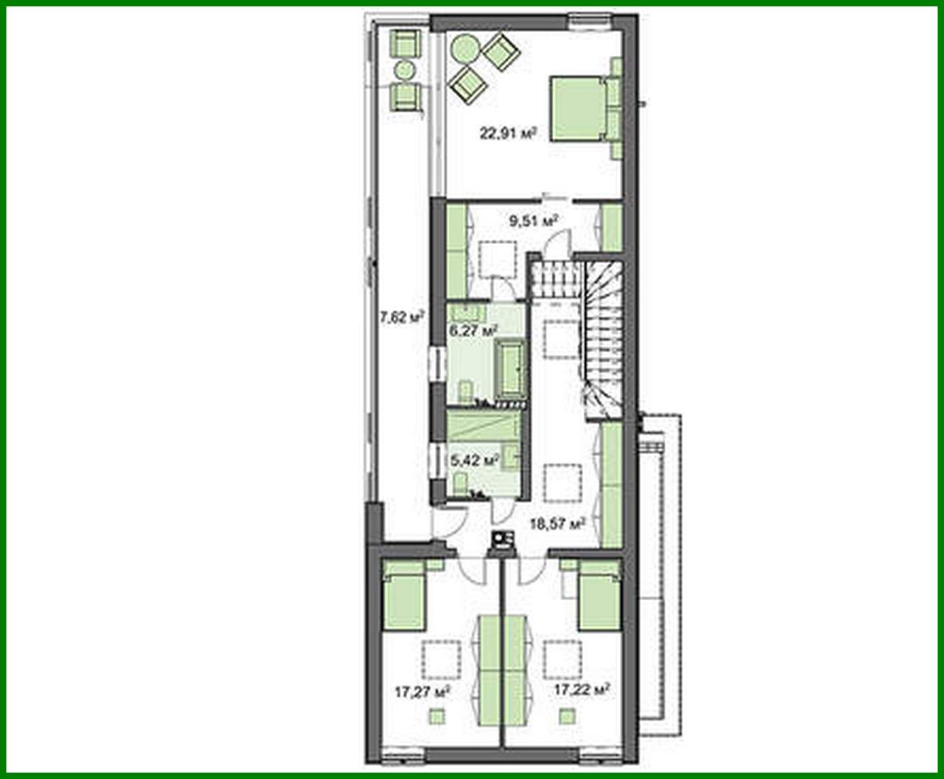
Chic two-story narrow house Number of floors: 2 Total area: 225.81 m2 Living Area: 103.91 m2 House height: 7.62 m Ceiling Height: 2.80 m Roof Angle: 2 ° Roof area: 108.00 m2 Cubic capacity: 641.61 m3 Number of bedrooms: 3 Number of bathrooms: 3 Garage: Two-car garage Minimum plot size (length): 16.00 m Minimum plot size (width): 21.50 m Built-up area: 142.51 m2 Materials: Walls: ceramic blocks Overlap: monolithic overlap Roofing: PVC membrane Foundation: monolithic tape

Interested in this plan?

Contact us to get full blueprints, construction estimate, or adapt this plan to your plot and needs.

Request more information

Visualization gallery