The project of a modern two-story house of simple construction

197 m² total area / 2120 ft² 2 floors 3 bedrooms 2 bathrooms
The project of a modern two-story house of simple construction
Click to view

Description

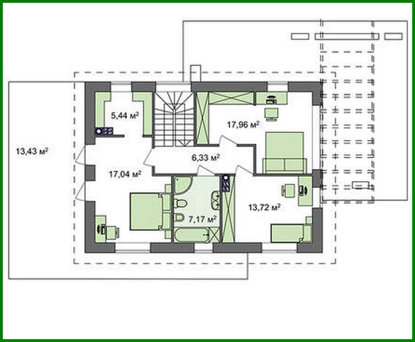
The project of a modern two-story house of simple construction Number of floors: 2 Total area: 196.76 m2 Living Area: 84.20 m2 House height: 8.11 m Ceiling Height: 2.80 m Roof Angle: 22 ° Roof area: 120.00 m2 Cubic capacity: 457.20 m3 Number of bedrooms: 3 Number of bathrooms: 2 Garage: Garage for one car Minimum plot size (length): 22.89 m Minimum plot size (width): 17.49 m Built-up area: 131 m2 Materials: Walls: aerated concrete, ceramic blocks Overlap: monolithic overlap Roofing: ceramic tile, metal tile, cement-sand tile Foundation: monolithic tape

Interested in this plan?

Contact us to get full blueprints, construction estimate, or adapt this plan to your plot and needs.

Request more information

Visualization gallery