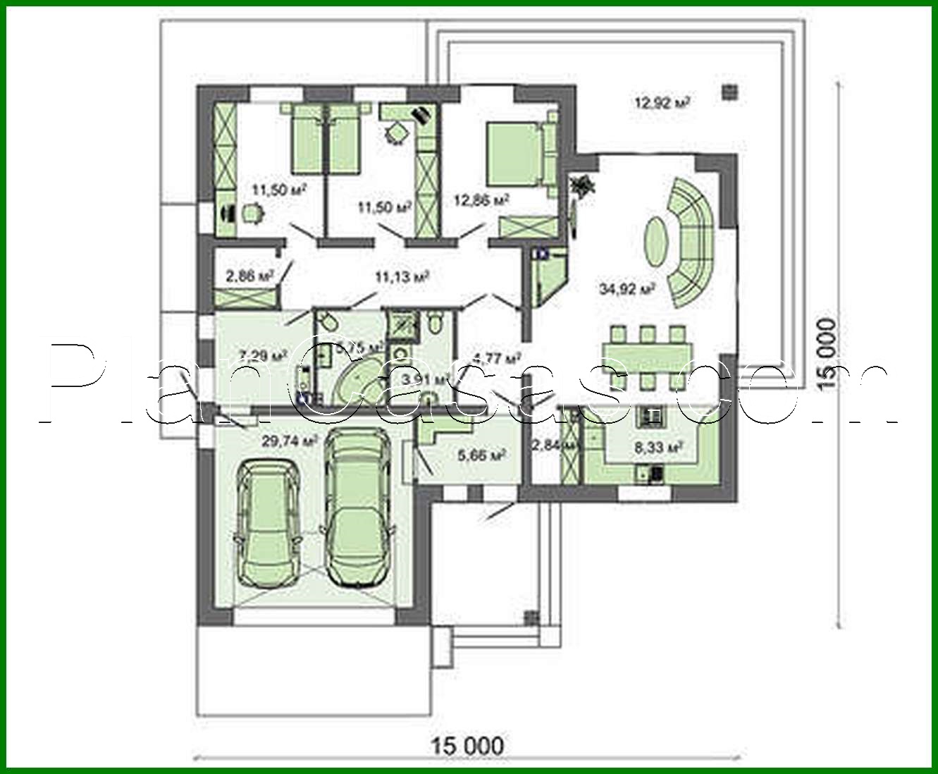
Project of a one-story cottage with an area of ​​166 square meters. m with built-in garage for 2 cars

166 m² total area / 1787 ft² 1 floor 3 bedrooms 2 bathrooms
Project of a one-story cottage with an area of ​​166 square meters. m with built-in garage for 2 cars
Click to view

Description

Project of a one-story cottage with an area of ​​166 square meters. m with built-in garage for 2 cars Number of floors: 1 Total area: 165.98 m2 Living Area: 70.78 m2 House height: 7.50 m Ceiling Height: 2.80 m Roof Angle: 30 ° Roof Area: 281.40 m2 Cubic capacity: 1035.00 m3 Number of bedrooms: 3 Number of bathrooms: 2 Garage: Two-car garage Minimum plot size (length): 23.00 m Minimum plot size (width): 23.00 m Materials: Walls: aerated concrete, ceramic blocks Ceiling: on wooden beams Roofing: metal tile, ceramic tile, bitumen Foundation: monolithic tape

Interested in this plan?

Contact us to get full blueprints, construction estimate, or adapt this plan to your plot and needs.

Request more information

Visualization gallery