Modern project of a two-story cottage with a garage

157 m² total area / 1690 ft² 2 floors 3 bedrooms 2 bathrooms
Modern project of a two-story cottage with a garage
Click to view

Description

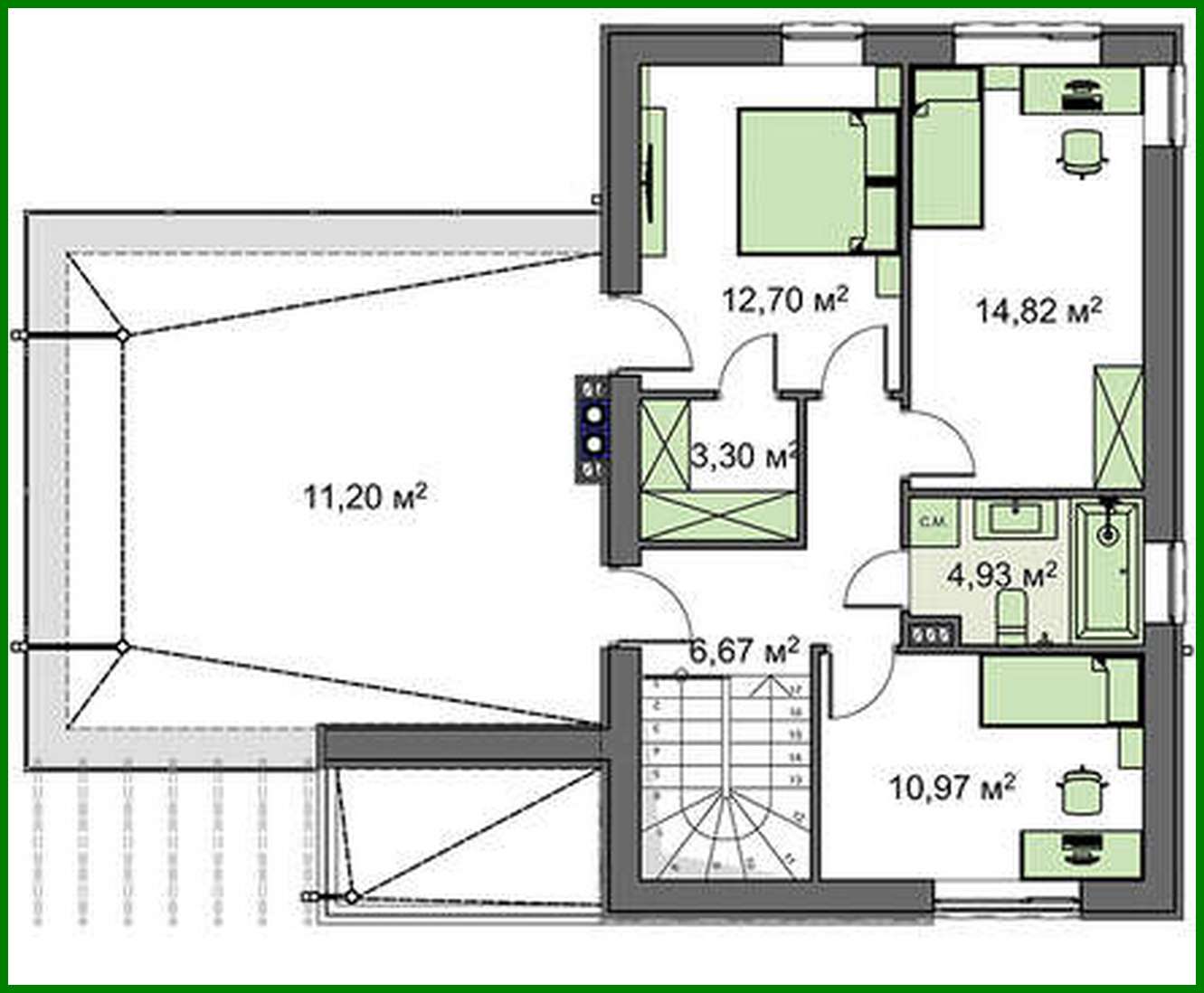
Modern project of a two-story cottage with a garage Number of floors: 2 Total area: 156.71 m2 Living Area: 69.12 m2 House height: 7.50 m Ceiling Height: 2.80 m Roof Angle: 2/3 ° Roof area: 60.00 m2 Cubic capacity: 351.00 m3 Number of bedrooms: 3 Number of bathrooms: 2 Garage: Garage for one car Minimum plot size (length): 18.00 m Minimum plot size (width): 22.00 m Built-up area: 174.19 m2 Materials: Walls: aerated concrete blocks Overlap: monolithic overlap Roofing: PVC membrane Foundation: monolithic tape

Interested in this plan?

Contact us to get full blueprints, construction estimate, or adapt this plan to your plot and needs.

Request more information

Visualization gallery