Project of a chic house with three huge bedrooms

261 m² total area / 2809 ft² 2 floors 3 bedrooms 4 bathrooms
Project of a chic house with three huge bedrooms
Click to view

Description

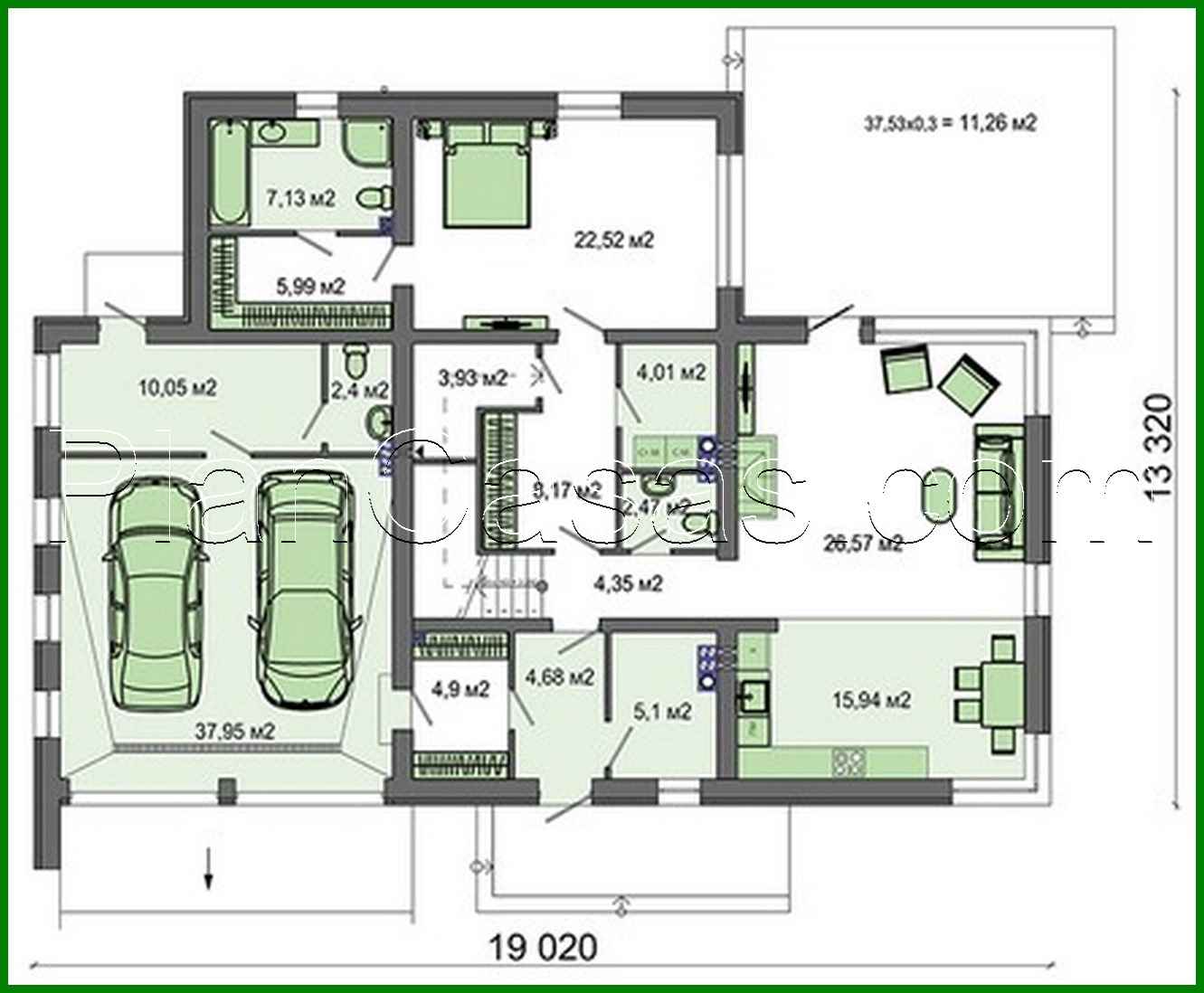
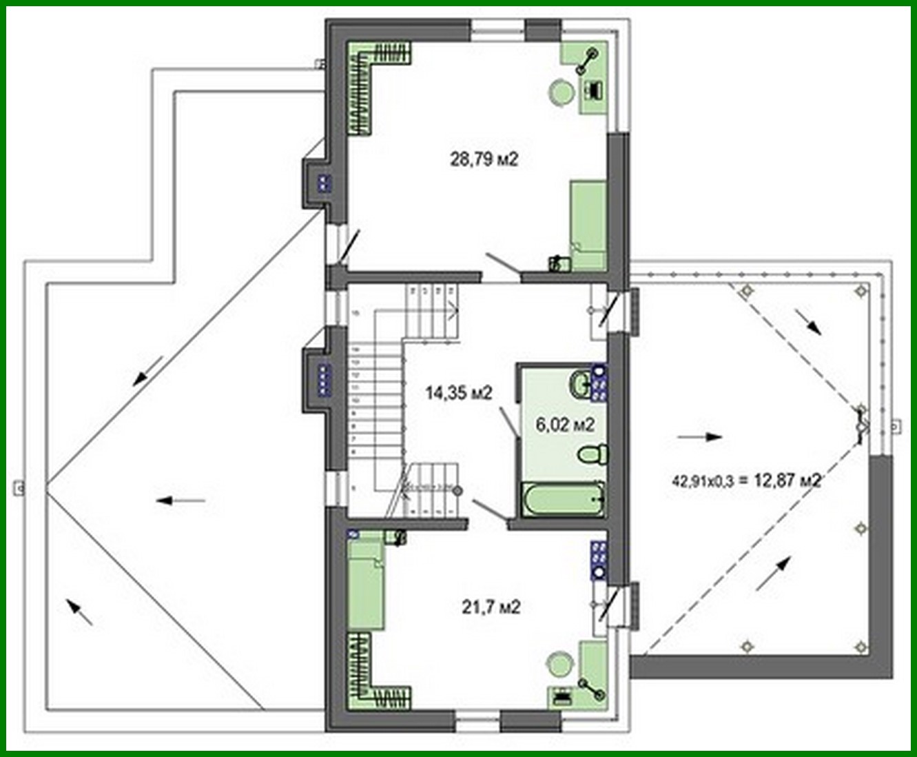
Layout of a chic house with three huge bedrooms Number of floors: 2 Total area: 261.15 m2 Living Area: 99.58 m2 House height: 7.30 m Ceiling Height: 2.80 m Roof Angle: 2 ° Roof Area: 153.50 m2 Number of bedrooms: 3 Number of bathrooms: 4 Garage: Two-car garage Minimum plot size (length): 25.50 m Minimum plot size (width): 21.50 m Built-up area: 284.88 m2 SIZES OF ROOMS Materials: Walls: aerated concrete blocks Overlap: monolithic overlap Roofing: PVC membrane Foundation: monolithic slab

Interested in this plan?

Contact us to get full blueprints, construction estimate, or adapt this plan to your plot and needs.

Request more information

Visualization gallery