Cottage project with built-in garage and 2 bedrooms

261 m² total area / 2809 ft² 2 floors 5 bedrooms 2 bathrooms
Cottage project with built-in garage and 2 bedrooms
Click to view

Description

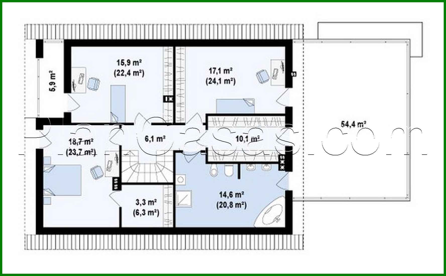
Cottage project with built-in garage and 2 bedrooms Number of floors: 2 Total area: 261.20 m2 Living Area: 200.90 m2 House height: 7.72 m Ceiling Height: 2.80 m Roof Angle: 30 ° Roof area: 201.15 m2 Cubic capacity: 652.64 m3 Number of bedrooms: 5 Number of bathrooms: 2 Garage: Two-car garage Minimum plot size (length): 18.44 m Minimum plot size (width): 27.04 m Materials: Walls: aerated concrete, ceramic blocks Overlap: monolithic overlap Roofing: ceramic tile, metal tile, cement-sand tile Foundation: monolithic tape band

Interested in this plan?

Contact us to get full blueprints, construction estimate, or adapt this plan to your plot and needs.

Request more information

Visualization gallery