Spectacular residential building with an original roof

273 m² total area / 2939 ft² 2 floors 4 bedrooms 2 bathrooms
Spectacular residential building with an original roof
Click to view

Description

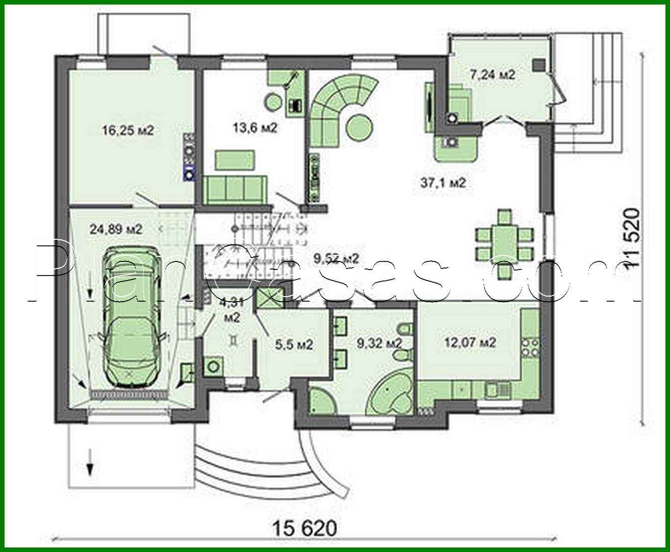
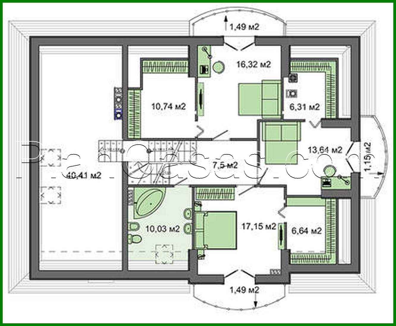
Spectacular residential building with an original roof Number of floors: 2 Total area: 272.67 m2 Living Area: 138.22 m2 House height: 8.68 m Ceiling Height: 2.80 m Roof Angle: 40 ° Roof area: 349.50 m2 Number of bedrooms: 4 Number of bathrooms: 2 Garage: Garage for one car Built-up area: 202.6 m2 Materials: Walls: aerated concrete blocks Overlap: monolithic overlap Roofing: metal Foundation: monolithic tape

Interested in this plan?

Contact us to get full blueprints, construction estimate, or adapt this plan to your plot and needs.

Request more information

Visualization gallery