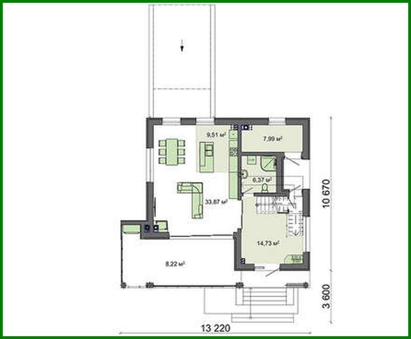
Two-story cottage with an underground garage

231 m² total area / 2486 ft² 2 floors 3 bedrooms 4 bathrooms
Two-story cottage with an underground garage
Click to view

Description

Two-story cottage with an underground garage Number of floors: 3 Total area: 231.19 m2 Living Area: 85.38 m2 House height: 9.47 m Ceiling Height: 2.50 m Roof Angle: 24 ° Roof Area: 187.50 m2 Number of bedrooms: 3 Number of bathrooms: 4 Garage: Garage for one car Minimum plot size (length): 21.50 m Minimum plot size (width): 30.00 m Built-up area: 194.69 m2 Ground floor area: 65.25 m2 Materials: Walls: aerated concrete blocks Overlap: floor slabs Roofing: metal tile, ceramic tile, bitumen Foundation: monolithic slab

Interested in this plan?

Contact us to get full blueprints, construction estimate, or adapt this plan to your plot and needs.

Request more information

Visualization gallery