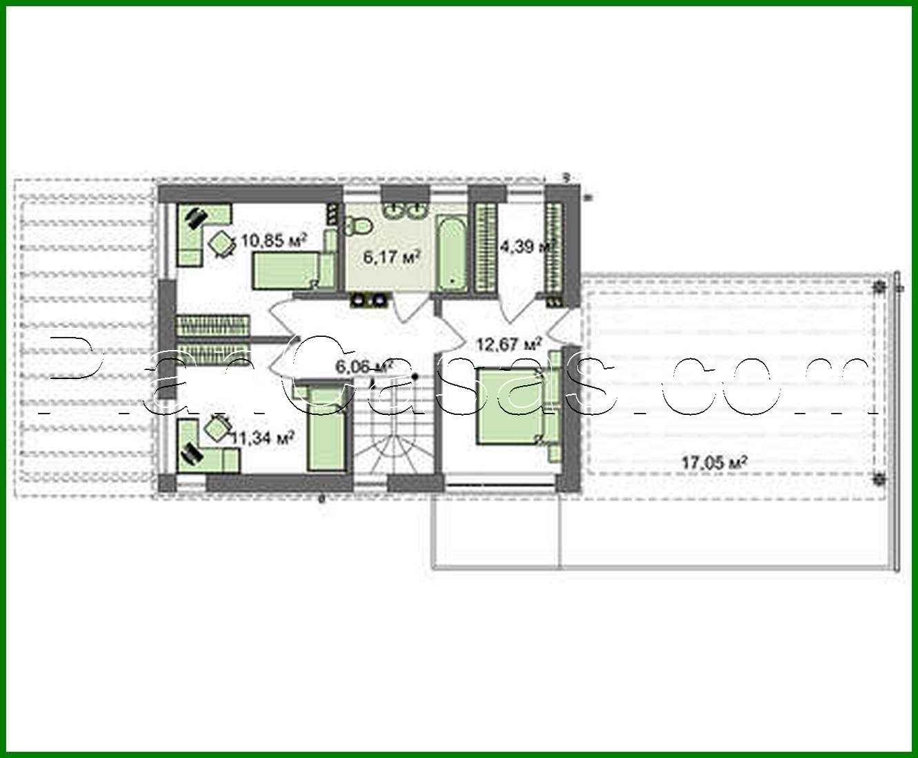
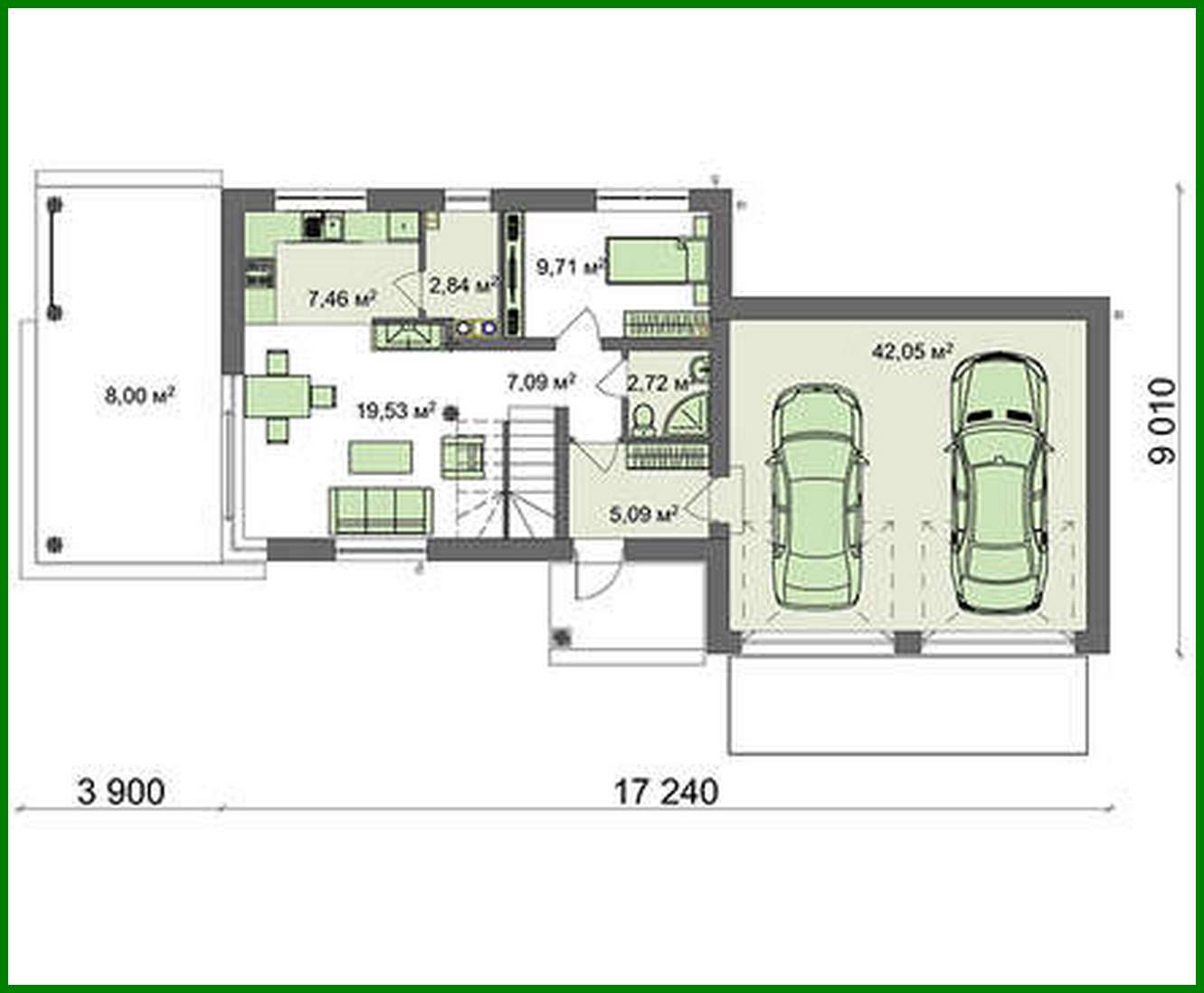
The project of a two-story cottage with an area of 173 square meters. m with open terraces on the first and second level

173 m² total area / 1862 ft² 2 floors 4 bedrooms 2 bathrooms
The project of a two-story cottage with an area of 173 square meters. m with open terraces on the first and second level
Click to view

Description

The project of a two-story cottage with an area of 173 square meters. m with open terraces on the first and second level Number of floors: 2 Total area: 173.02 m2 Living Area: 64.10 m2 House height: 7.02 m Ceiling Height: 2.80 m Roof Angle: 2 ° Roof Area: 57.47 m2 Number of bedrooms: 4 Number of bathrooms: 2 Garage: Two-car garage Built-up area: 161.4 m2 Materials: Walls: brick Overlap: floor slabs Roofing: PVC membrane Foundation: monolithic tape

Interested in this plan?

Contact us to get full blueprints, construction estimate, or adapt this plan to your plot and needs.

Request more information

Visualization gallery