Beautiful mansion in a modern style

297 m² total area / 3197 ft² 2 floors 4 bedrooms 4 bathrooms
Beautiful mansion in a modern style
Click to view

Description

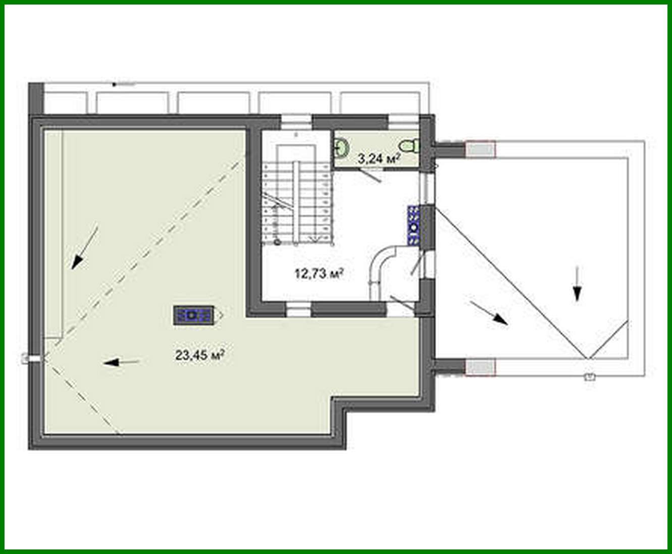
Beautiful mansion in a modern style Number of floors: 3 Total area: 296.79 m2 Living Area: 129.33 m2 House height: 10.60 m Ceiling Height: 3.00 m Roof Angle: 2 ° Roof area: 66.00 m2 Number of bedrooms: 4 Number of bathrooms: 4 Garage: Two-car garage Minimum plot size (length): 19.00 m Minimum plot size (width): 30.00 m Built-up area: 251.29 m2 Materials: Walls: aerated concrete blocks Overlap: monolithic overlap Roofing: PVC membrane Foundation: Piles

Interested in this plan?

Contact us to get full blueprints, construction estimate, or adapt this plan to your plot and needs.

Request more information

Visualization gallery