The project of a small cottage with an attic

120 m² total area / 1292 ft² 1 floor 4 bedrooms 2 bathrooms
The project of a small cottage with an attic
Click to view

Description

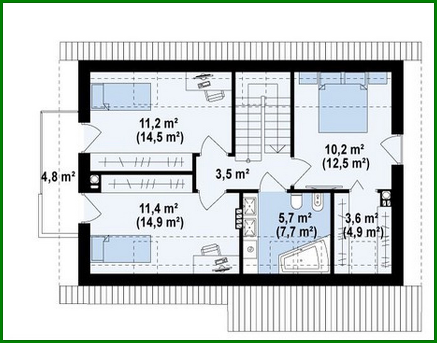
The project of a small cottage with an attic Number of floors: 2 Total area: 120.30 m2 Living Area: 107.60 m2 House height: 7.69 m Ceiling Height: 2.80 m Roof Angle: 40 ° Roof area: 136.00 m2 Cubic capacity: 296.80 m3 Number of bedrooms: 4 Number of bathrooms: 2 Minimum plot size (length): 15.44 m Minimum plot size (width): 18.74 m Materials: Walls: aerated concrete, ceramic blocks Overlap: monolithic overlap Roofing: ceramic tile, metal tile, cement-sand tile Foundation: monolithic tape band

Interested in this plan?

Contact us to get full blueprints, construction estimate, or adapt this plan to your plot and needs.

Request more information

Visualization gallery