Project of a house with a high attic wall

110 m² total area / 1184 ft² 1 floor 4 bedrooms 2 bathrooms
Project of a house with a high attic wall
Click to view

Description

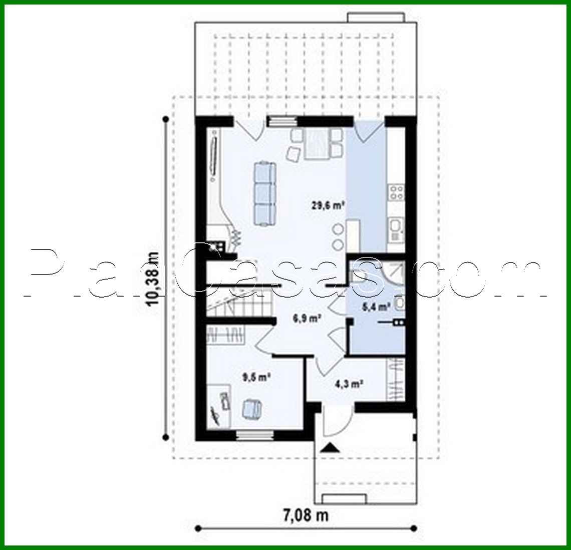
Project of a house with a high attic wall Number of floors: 2 Total area: 110.20 m2 Living Area: 107.05 m2 House height: 7.38 m Ceiling Height: 2.80 m Roof Angle: 30 ° Roof area: 110.00 m2 Cubature: 290.00 m3 Number of bedrooms: 4 Number of bathrooms: 2 Minimum plot size (length): 18.38 m Minimum plot size (width): 13.08 m Materials: Walls: aerated concrete, ceramic blocks Overlap: monolithic overlap Roofing: ceramic tile, metal tile, cement-sand tile Foundation: monolithic tape band

Interested in this plan?

Contact us to get full blueprints, construction estimate, or adapt this plan to your plot and needs.

Request more information

Visualization gallery