House project with a terrace above the garage

231 m² total area / 2486 ft² 2 floors 5 bedrooms 3 bathrooms
House project with a terrace above the garage
Click to view

Description

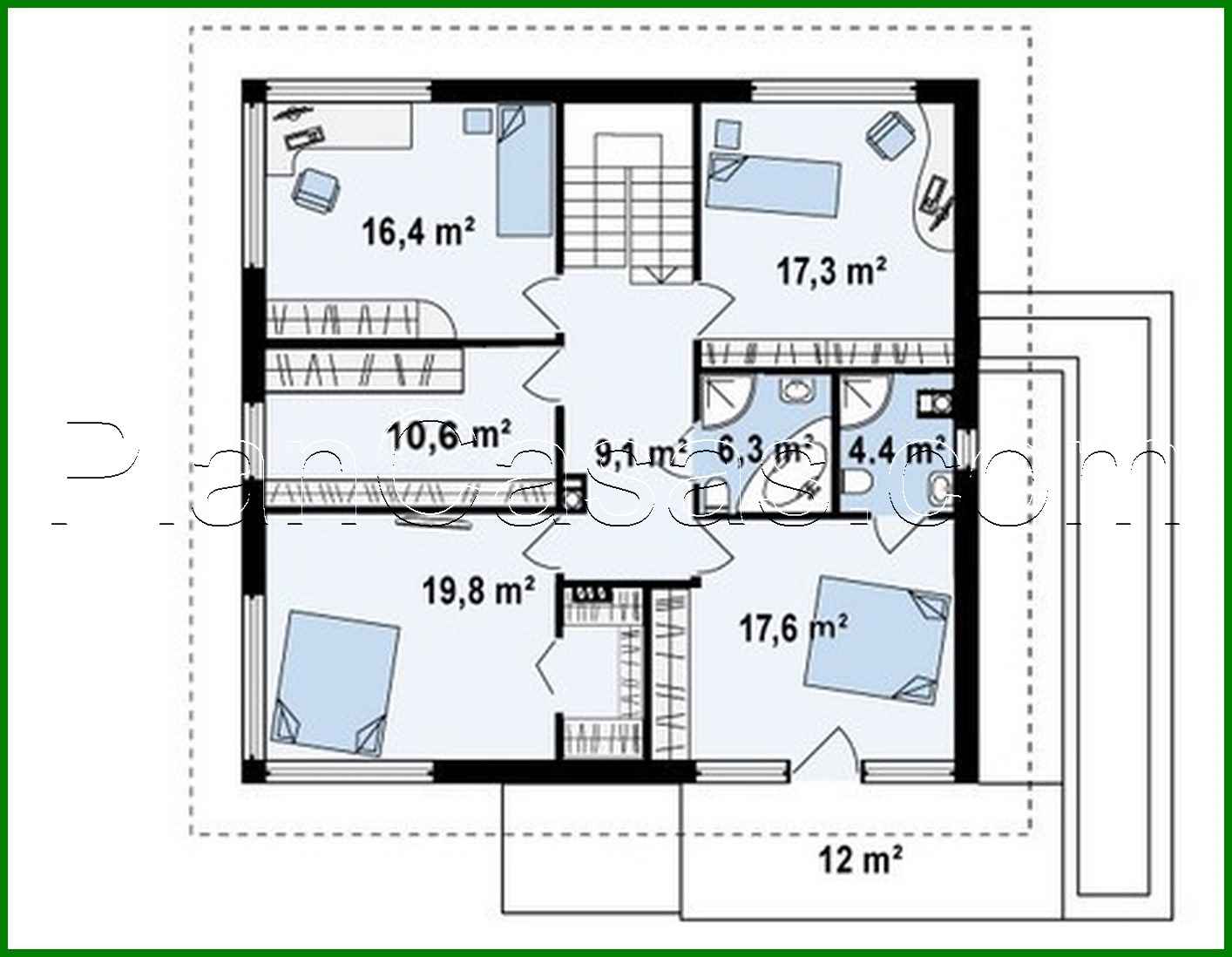
House project with a terrace above the garage Number of floors: 2 Total area: 231.30 m2 Living Area: 183.40 m2 House height: 10.00 m Ceiling Height: 2.80 m Roof Angle: 30 ° / 35 ° Roof area: 191.00 m2 Cubic capacity: 670.80 m3 Number of bedrooms: 5 Number of bathrooms: 3 Garage: Two-car garage Minimum plot size (length): 20.94 m Minimum plot size (width): 21.39 m Materials: Walls: aerated concrete, ceramic blocks Overlap: monolithic overlap Roofing: ceramic tile, metal tile, cement-sand tile Foundation: monolithic tape band

Interested in this plan?

Contact us to get full blueprints, construction estimate, or adapt this plan to your plot and needs.

Request more information

Visualization gallery