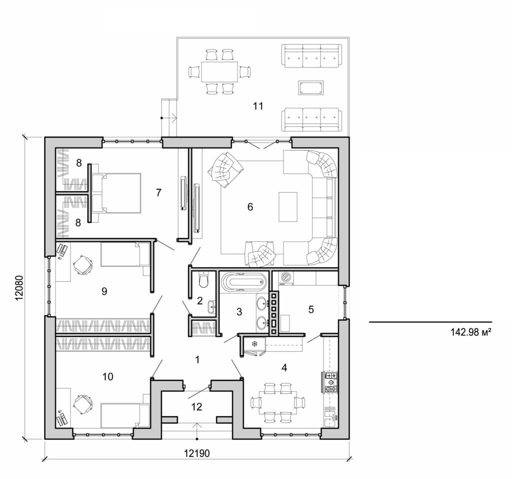
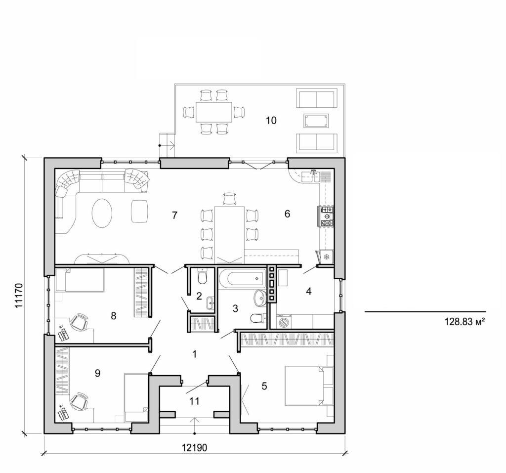
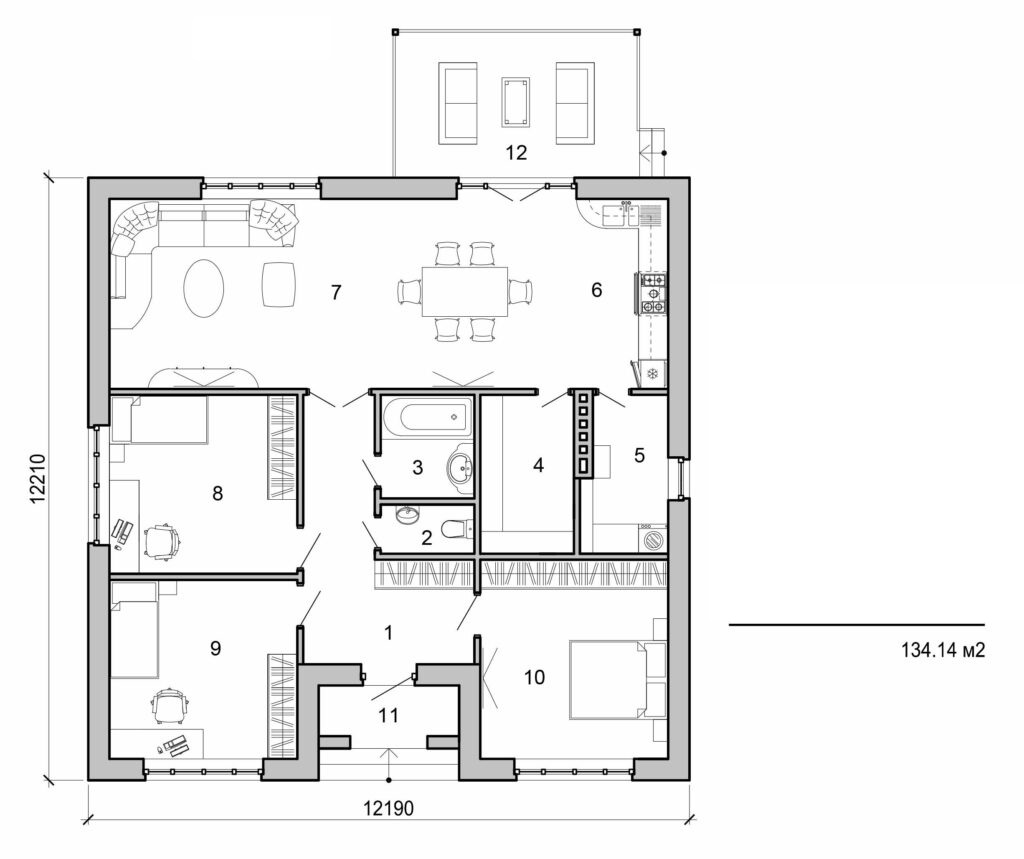
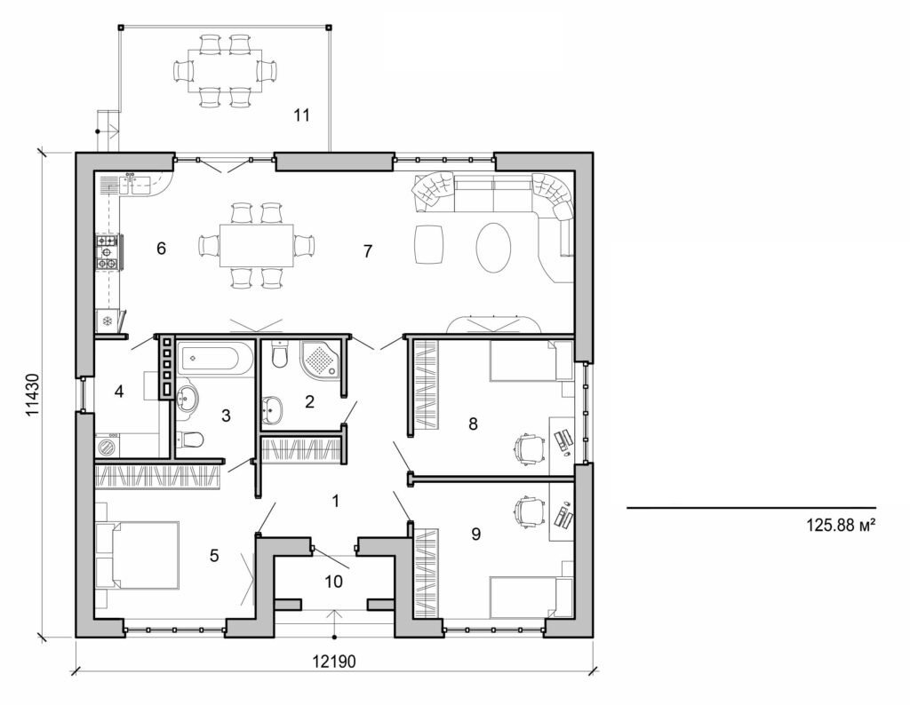
One storey small house

128 m² total area / 1378 ft² 1 floor bedrooms
One storey small house
Click to view

Interested in this plan?

Contact us to get full blueprints, construction estimate, or adapt this plan to your plot and needs.

Request more information

Visualization gallery