House project with a glazed terrace

196 m² total area / 2110 ft² 2 floors 3 bedrooms 3 bathrooms
House project with a glazed terrace
Click to view

Description

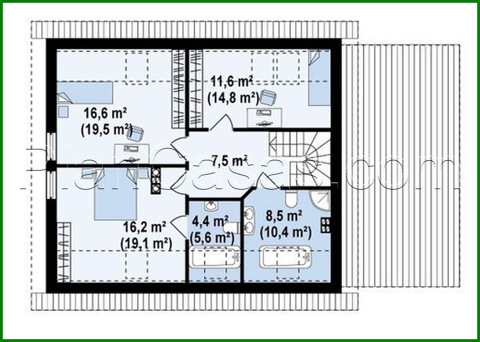
House project with a glazed terrace Number of floors: 2 Total Area: 195.90 m2 Living Area: 157.80 m2 House height: 8.00 m Ceiling Height: 2.80 m Roof Angle: 35 ° / 35 ° Roof area: 193.00 m2 Cubature: 496.00 m3 Number of bedrooms: 3 Number of bathrooms: 3 Garage: Garage for one car Minimum plot size (length): 21.64 m Minimum plot size (width): 19.28 m Materials: Walls: aerated concrete, ceramic blocks Overlap: monolithic overlap Roofing: ceramic tile, metal tile, cement-sand tile Foundation: monolithic tape band

Interested in this plan?

Contact us to get full blueprints, construction estimate, or adapt this plan to your plot and needs.

Request more information

Visualization gallery