Project of a stylish cottage with a garage for two cars

275 m² total area / 2960 ft² 2 floors 3 bedrooms 3 bathrooms
Project of a stylish cottage with a garage for two cars
Click to view

Description

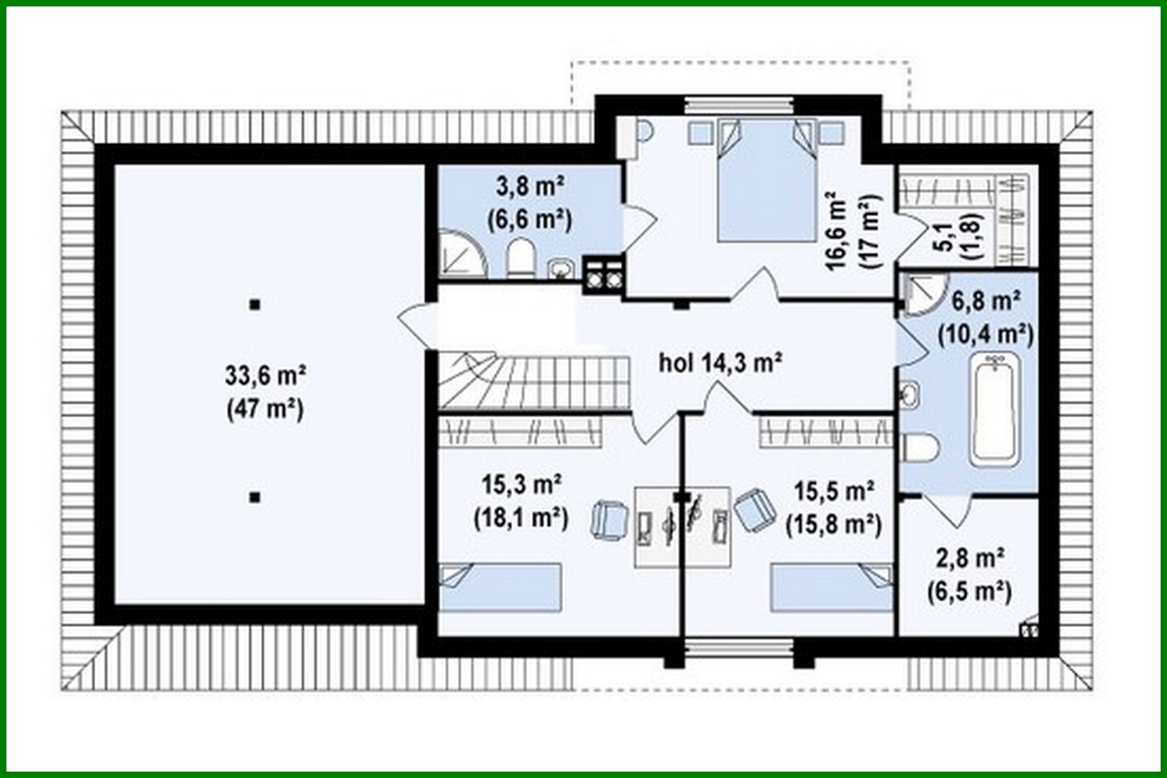
Project of a stylish cottage with a garage for two cars Number of floors: 2 Total area: 275.00 m2 Living Area: 201.00 m2 House height: 8.00 m Ceiling Height: 2.80 m Roof Angle: 38 ° Roof area: 259.00 m2 Cubature: 685.30 m3 Number of bedrooms: 3 Number of bathrooms: 3 Garage: Two-car garage Minimum plot size (length): 18.00 m Minimum plot size (width): 25.00 m Materials: Walls: aerated concrete, ceramic blocks Overlap: monolithic overlap Roofing: ceramic tile, metal tile, cement-sand tile Foundation: monolithic tape band

Interested in this plan?

Contact us to get full blueprints, construction estimate, or adapt this plan to your plot and needs.

Request more information

Visualization gallery