The project of a simple house with a gable roof

159 m² total area / 1711 ft² 2 floors 3 bedrooms 2 bathrooms
The project of a simple house with a gable roof
Click to view

Description

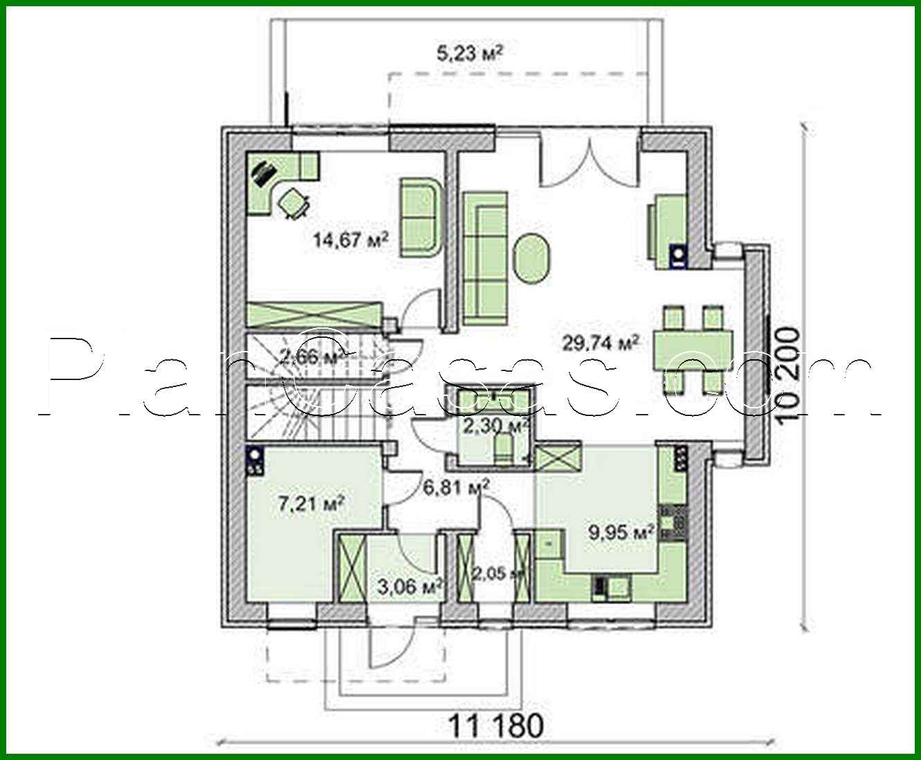
The project of a simple house with a gable roof Number of floors: 2 Total area: 158.75 m2 Living Area: 100.37 m2 House height: 8.84 m Ceiling Height: 2.80 m Roof Angle: 40 ° Roof area: 220.00 m2 Cubic capacity: 603.00 m3 Number of bedrooms: 3 Number of bathrooms: 2 Minimum plot size (length): 16.00 m Minimum plot size (width): 17.00 m Built-up area: 131.5 m2 Materials: Walls: aerated concrete blocks Overlap: monolithic overlap Roofing: metal tile, ceramic tile, bitumen Foundation: monolithic tape

Interested in this plan?

Contact us to get full blueprints, construction estimate, or adapt this plan to your plot and needs.

Request more information

Visualization gallery