Project of a small beautiful house with an attic

131 m² total area / 1410 ft² 1 floor bedrooms
Project of a small beautiful house with an attic
Click to view

Description

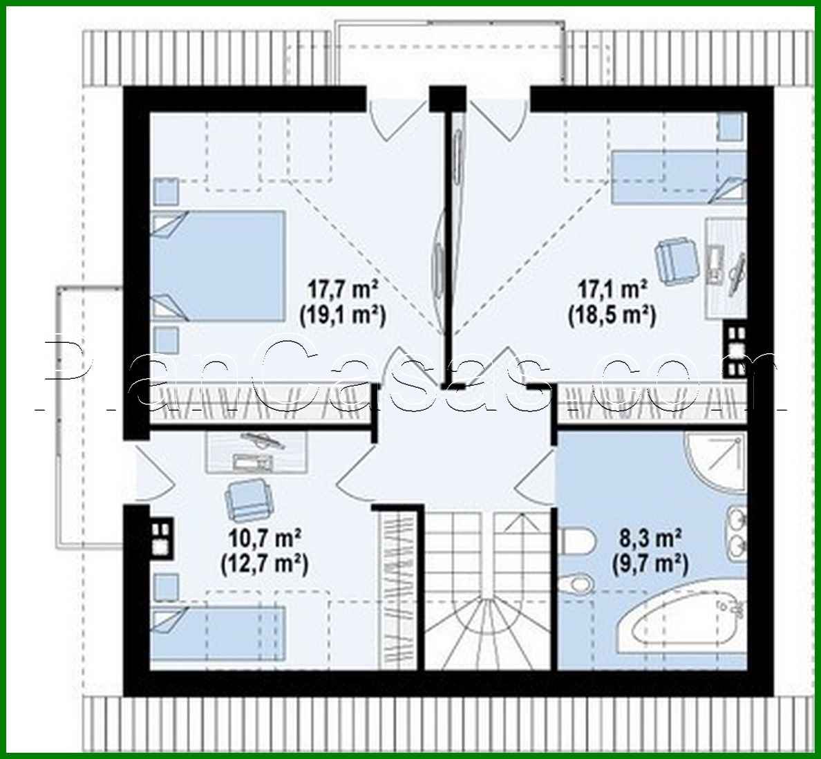
Project of a small beautiful house with an attic Number of floors: 2 Total area: 131.40 m2 Living Area: 125.30 m2 House height: 7.97 m Ceiling Height: 2.80 m Roof Angle: 35 ° Roof area: 133.00 m2 Cubature: 335.00 m3 Minimum plot size (length): 16.54 m Minimum plot size (width): 16.94 m Materials: Walls: aerated concrete, ceramic blocks Overlap: monolithic overlap Roofing: ceramic tile, metal tile, cement-sand tile Foundation: monolithic tape band

Interested in this plan?

Contact us to get full blueprints, construction estimate, or adapt this plan to your plot and needs.

Request more information

Visualization gallery