The project of a classic two-story mansion with a brick facade

197 m² total area / 2120 ft² 2 floors 5 bedrooms 2 bathrooms
The project of a classic two-story mansion with a brick facade
Click to view

Description

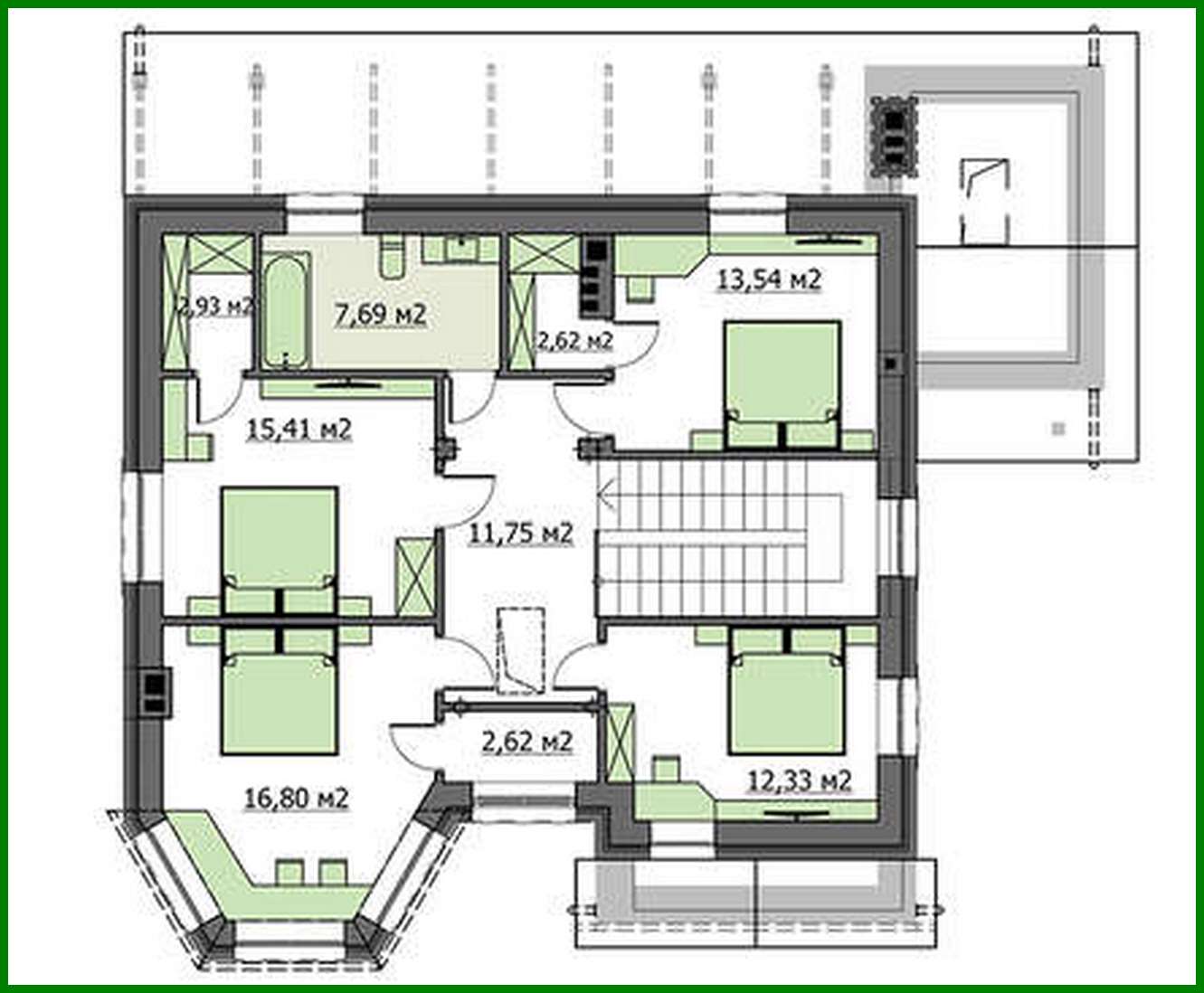
The project of a classic two-story mansion with a brick facade Number of floors: 2 Total area: 197.47 m2 Living Area: 127.27 m2 House height: 9.92 m Ceiling Height: 2.80 m Roof Angle: 32/40 ° Roof area: 230.20 m2 Number of bedrooms: 5 Number of bathrooms: 2 Minimum plot size (length): 22.00 m Minimum plot size (width): 24.00 m Built-up area: 258.35 m2 Materials: Walls: brick Overlap: monolithic overlap Roofing: metal tile, ceramic tile, bitumen Foundation: monolithic tape

Interested in this plan?

Contact us to get full blueprints, construction estimate, or adapt this plan to your plot and needs.

Request more information

Visualization gallery