Boho Loft House Blueprint — 2 Beds, 1.5 Baths, 1,098 sq ft (102 m²), Bright Open Living

102 m² total area / 1098 ft² 2 floors 2 bedrooms 1.5 bathrooms
Boho Loft House Blueprint — 2 Beds, 1.5 Baths, 1,098 sq ft (102 m²), Bright Open Living
Click to view

Description

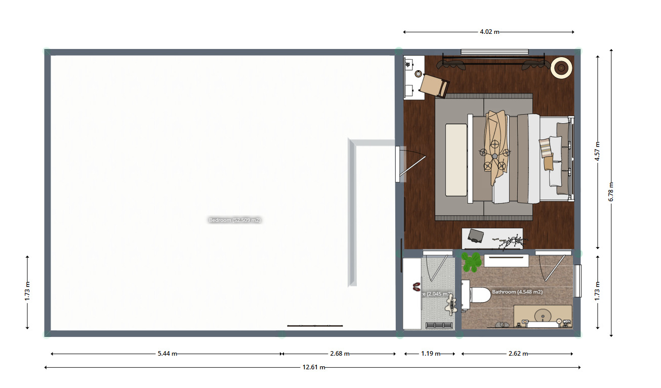
Bring laid-back style home with this boho loft house blueprint designed for bright, open living. With 1,098 sq ft (102 m²) across two levels, the plan centers on an airy great-room where cooking, dining, and lounging come together under 9-ft ceilings. A main-floor bedroom and spa-style bathroom make daily life easy, while the upstairs primary suite sits like a private loft retreat. A handy half-bath upstairs adds convenience, and smart built-ins keep the compact footprint feeling calm and organized. Home Plan Highlights: - L-shaped chef’s kitchen with walk-in pantry - Double-vanity spa bath plus handy half-bath upstairs - Shelved storage nooks off the stair hall - Blank flex zone for future office or hobby room - Efficient 12 m × 6 m footprint that fits narrow lots Key Specs: - Total area: 1,098 sq ft (102 m²) - 2 floors, 2 bedrooms, 1.5 bathrooms - No garage - Dimensions: Depth 21' 4", Width 40' 4", Height 19' 8" - Ceiling: 9′ ceilings on main; 8′ loft

Interested in this plan?

Contact us to get full blueprints, construction estimate, or adapt this plan to your plot and needs.

Request more information

Visualization gallery

Blueprints