537. The project of a two-story brick house with an area of 262 square meters with modern balconies

999.00$

The project of a two-story brick house with an area of 262 square meters. m with modern balconies
Number of floors: 2
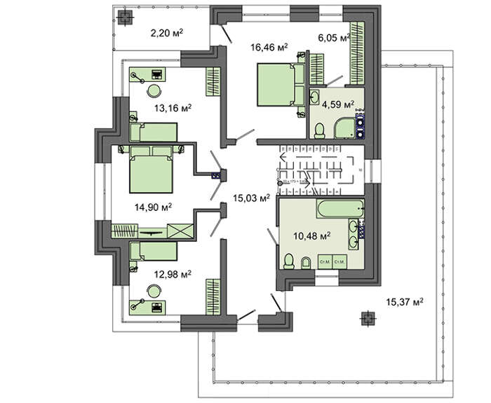
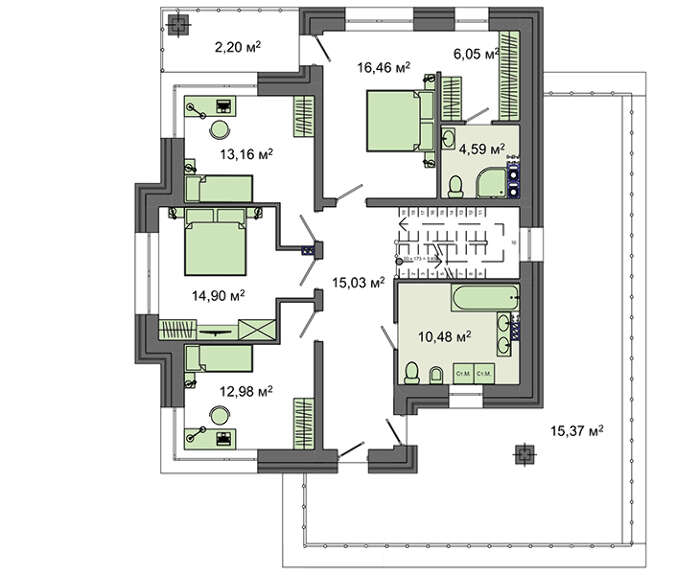
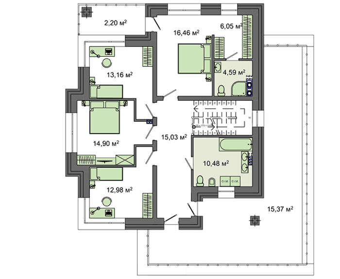
Total area: 262.27 m2
Living Area: 107.77 m2
House height: 9.94 m
Ceiling Height: 3.00 m
Roof Angle: 25 °
Roof area: 225.50 m2
Number of bedrooms: 5
Number of bathrooms: 3
Garage: Two-car garage
Minimum plot size (length): 24.50 m
Minimum plot size (width): 23.00 m
Built-up area: 245.95 m2
Materials:
Walls: brick
Overlap: monolithic overlap
Roofing: metal tile, ceramic tile, bitumen
Foundation: monolithic tape

Category: Tag:
en_USEnglish