685. Project of a small house with a gable roof attic

999.00$

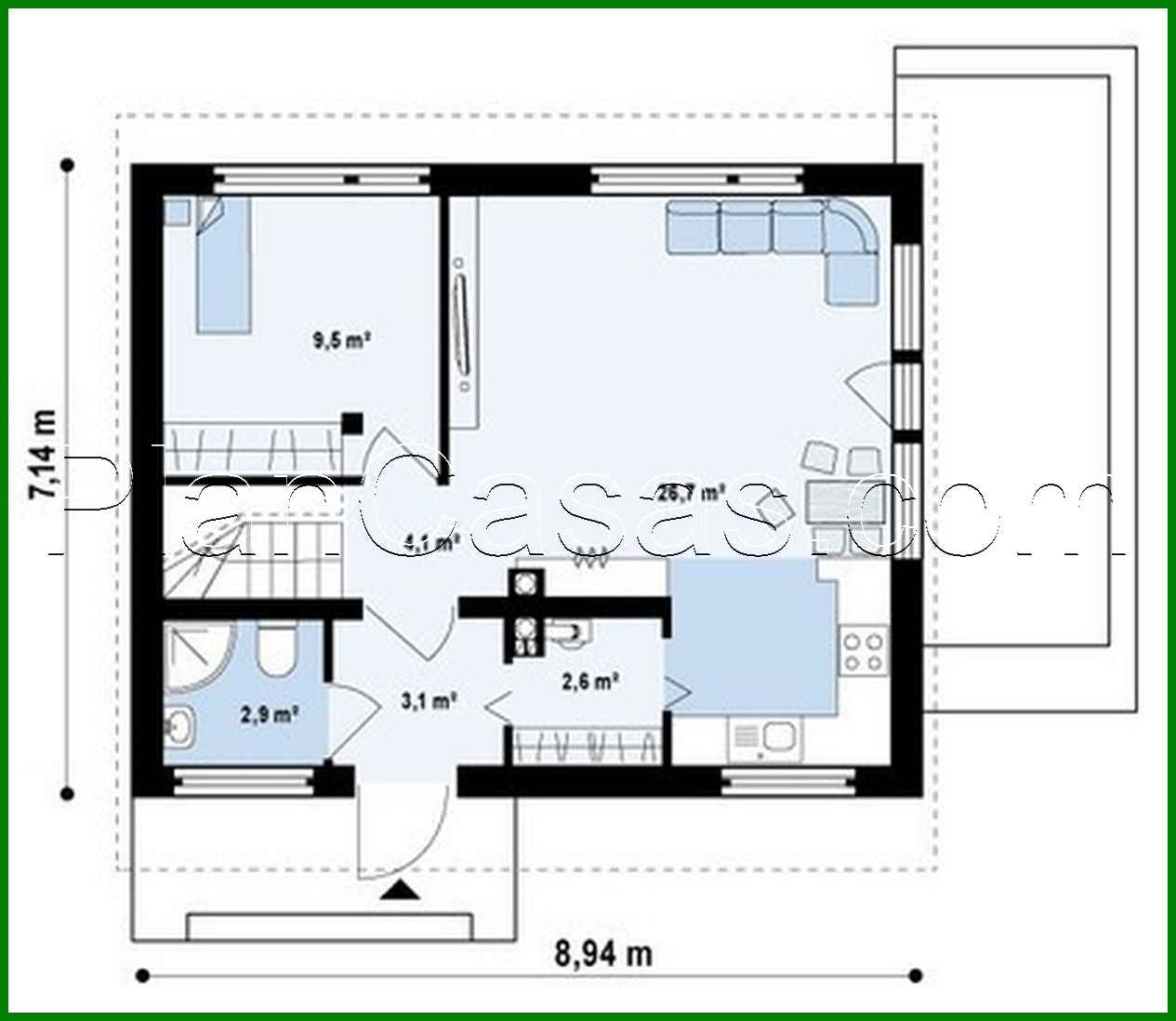
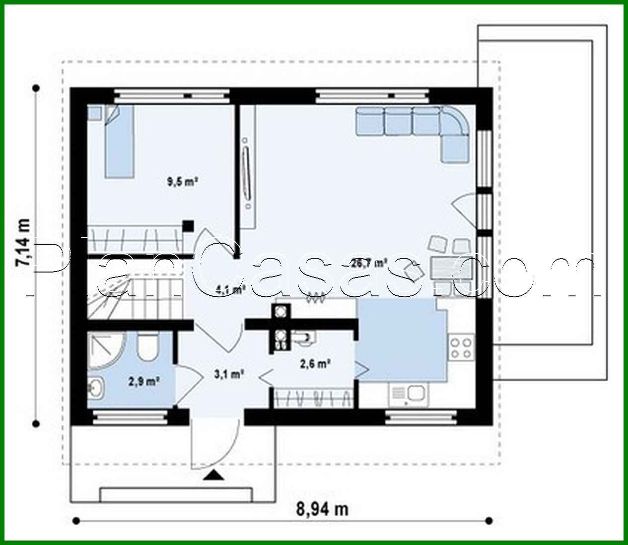
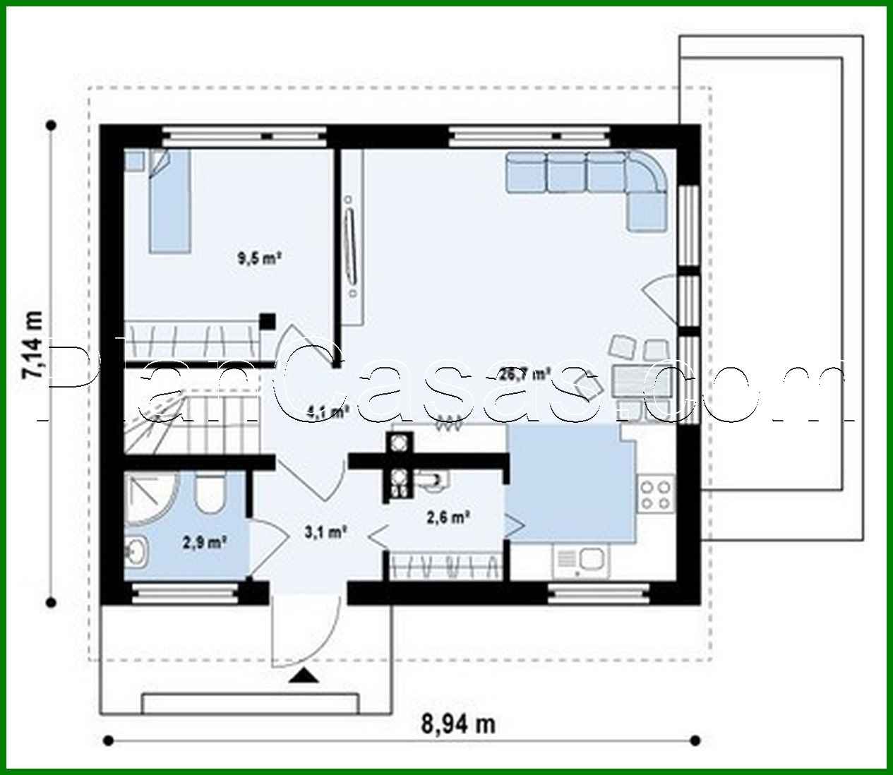
Project of a small house with a gable roof attic
Number of floors: 2
Total area: 94.80 m2
Living Area: 79.10 m2
House height: 7.14 m
Ceiling Height: 2.80 m
Roof Angle: 40 °
Roof area: 97.00 m2
Cubature: 296.00 m3
Number of bedrooms: 4
Number of bathrooms: 2
Minimum plot size (length): 15.14 m
Minimum plot size (width): 15.94 m
Built-up area: 63 m2
Materials:
Walls: aerated concrete, ceramic blocks
Overlap: monolithic overlap
Roofing: ceramic tile, metal tile, cement-sand tile
Foundation: monolithic tape band

en_USEnglish